تابعنا على



مشروع كريستالة فيو

موقع المشروع


يتميز المشروع بالقرب الشديد من الطريق الدائري وكارفور المعادي ونادي الصيد مع الاحتفاظ بالهدوء وبجوار مركز اسلامي كامل الخدمات



إضغط على الصورة للتكبير
  • صورة المشروع
    صورة المشروع
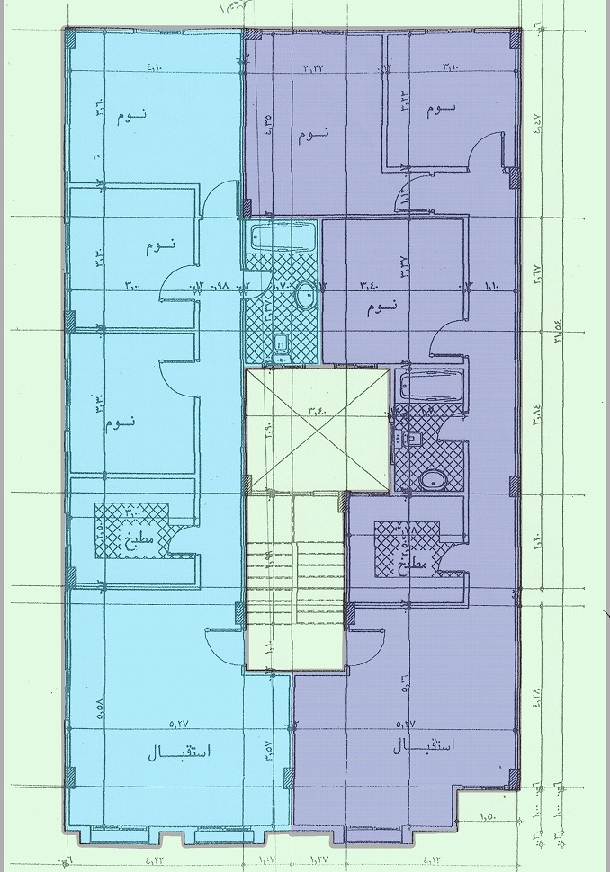
  • مسقط افقى للدور المتكرر
    مسقط افقى للدور المتكرر

تفاصيل المشروع


مكونات المشروع

المشروع عبارة عن عمارة سكنية تتكون من بدروم جراج وأرضي سكني واربع ادوار سكنية متكررة الدور به شقتين



المساحات

125م2

130م2



الاستلام

تم التسليم بحمد الله



مواصفات التشــطيب


داخل الشقه

حوائط كاملة المحارة وحلوق خشبيه من اجود انواع الاخشاب ووصلات الكهرباء والمياة والصرف الصحي الرئيسيه .



الواجهات الخارجية

الواجهات الخارجية كلاسيكية ذات تصميم معماري رائع من الدهانات المقاومة لعوامل الرطوبة .



مدخل العمارة

تجهيز مدخل العمارة ذات تصميمات رائعة من اجود انواع الرخام .

السلالم الرئيسية وصدفات السلالم من الرخام المصري الفاخر .




Place on the map

وَلِلّهِ الأَسْمَاء الْحُسْنَى فَادْعُوهُ بِهَا وَذَرُواْ الَّذِينَ يُلْحِدُونَ فِي أَسْمَآئِهِ سَيُجْزَوْنَ مَا كَانُواْ يَعْمَلُون هو الله | الرحمن | الرحيم | الملك | القدوس | السلام | المؤمن | المهيمن | العزيز | الجبار | المتكبر | الخالق | البارئ | المصور | الغفار | القهار | الوهاب | الرزاق | الفتاح | العليم | القابض | الباسط | الخافض | الرافع | المعز | المذل | السميع | البصير | الحكم | العدل | اللطيف | الخبير | الحليم | العظيم | الغفور | الشكور | العلي | الكبير | الحفيظ | المقيت | الحسيب | الجليل | الكريم | الرقيب | المجيب | الواسع | الحكيم | الودود | المجيد | الباعث | الشهيد | الحق | الوكيل | القوي | المتين | الولي | الحميد | المحصي | المبدئ | المعيد ا المحيي | المميت | الحي | القيوم | الواجد | الماجد | الواحد | الأحد | الصمد | القادر | المقتدر | المقدم | المؤخر | الأول | الآخر | الظاهر | الباطن | الوالي | المتعالي | البر | التواب | المنتقم | العفو | الرءوف | مالك الملك | ذو الجلال والإكرام | المقسط | الجامع |الغني | المغني | المانع | الضار | النافع | النور | الهادي | البديع | الباقي | الوارث | الرشيد | الصبور